
















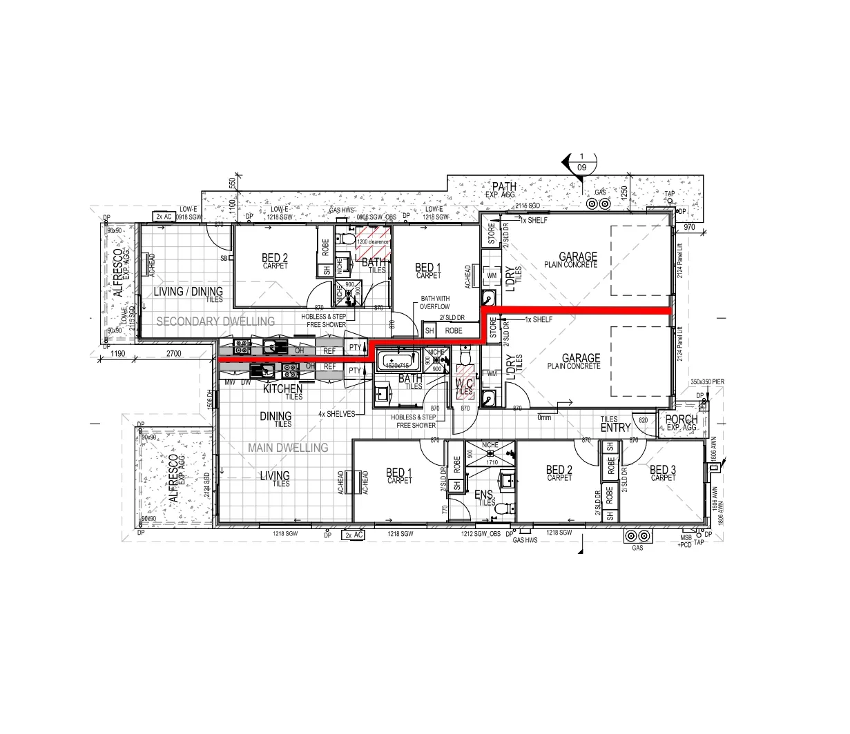
1/16 Miraflores Place, Wondunna QLD 4655
Freshly built duplex nestled in the new Pinnacle Estate, conveniently located close to all necessities, walk private school,hospitals & shopping just minutes away.
Property Features:
Inspection Rules: MAXIMUM of 2 people are to enter the property per g...
Property Tour
Booking with
Colin Beattie